Маленькая картинка
Маленькая картинка
Звоните
+375 29 310-62-10
Свяжитесь с нами
Перезвоните мне

Odense

Полезная площадь 242,21m2
Тип Одноэтажный дом
Чистая площадь 259,24m2
Минимальная ширина участка 35,90m x 19,70m
Объем 1 448,88m2
Высота конька 9,80m
Угол крыши 35°
Image

Первый этаж

183,37m2

Вестибюль:5,29m2
Гардероб:2,32m2
Комната:12,07m2
Гардероб:6,23m2
Ванная комната:6,76m2
Комната:14,95m2
Ванная комната:3,96m2
Коммуникация:2,70m2
Гостиная столовая:28,37m2
Кухня:13,03m2
Кладовая:4,03m2
Прачечная, центральное отопление:13,11m2(14,93m2)
Вестибюль:4,17m2
Комната:6,09m2
Ванная комната:3,99m2
Гостиная столовая:40,27m2(42,37m2)
Кухня:16,03m2
Платформа:78,80m2
Терраса:14,55m2
Терраса:25,44m2
Платформа:1,47m2
Image

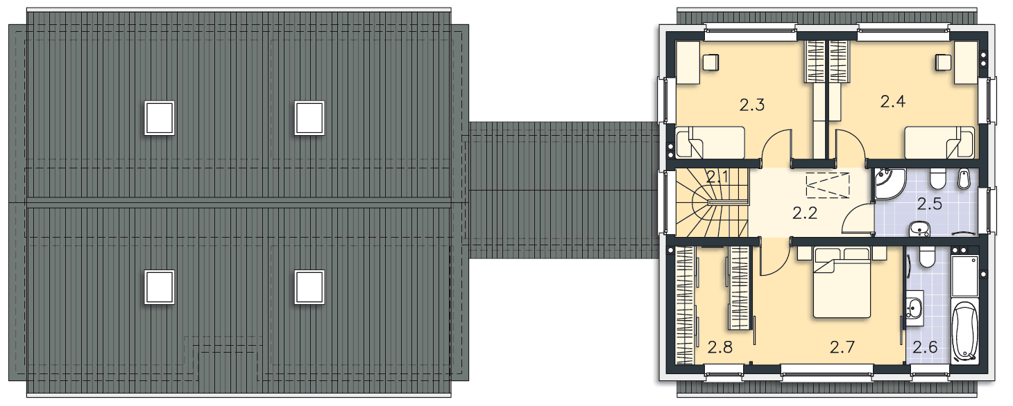
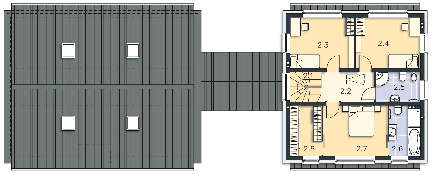
Пол

71,95m2

Лестница:3,93m2
Коммуникация:6,68m2
Комната:14,02m2
Комната:14,02m2
Ванная комната:5,63m2
Ванная комната:6,76m2
Комната:14,02m2
Гардероб:6,89m2

Звоните

Пн-Пт с 9:00 до 18:00
+375 29 310-62-10

или заполните форму
для обратного звонка

мы перезвоним и ответим на Ваши вопросы

Мы находимся по адресу:

г. Минск, ул. Кнорина 55, офис 51

Наш офис

Контакты
Время работы
Пн-Пт с 9:00 до 18:00
Адрес
г. Минск, ул. Кнорина 55, оф.51
Рассчитать стоимость
Перезвоните мне
Вызвать замерщика