Аттестованная строительная
компания в Беларуси
калькулятор стоимости
Звоните
+375 29 310-62-10
Свяжитесь с нами
Перезвоните мне
Главная
О компании
Услуги
Строительство
Коттеджи
Дачные домики
Проекты частных домов
Типовые проекты
3D дизайн дома
Геодезия и геология земельного участка
Геология участка
Геодезия участка
Топосъемка земельного участка
Восстановление границ земельного участка
Вынос осей
Фундаментные строительные работы
Фундамент для дома
Плитный фундамент
Свайно-ростверковый фундамент
Свайно-винтовой фундамент
Ленточный фундамент
Столбчатый фундамент
Фундамент из блоков ФБС
Фундамент под гараж
Фундамент под забор
Строительство стен дома
Дома из блоков
Дома из газосиликата
Дома из газобетона
Дома из керамзитобетона
Дома из керамоблоков
Дома из кирпича
Кровельные работы
Разновидности крыш
Односкатные крыши
Двускатные крыши
Четырехскатные крыши
Плоские крыши
Материалы кровли
Мягкая кровля
Кровля из цементно-песчаной черепицы
Фальцевая кровля
Кровля из плоской черепицы
Кровля из металлочерепицы
Кровля из композитной черепицы
Кровля из керамической черепицы
Кровля из битумной черепицы
Виды работ
Проектирование крыш
Ремонт кровли крыши частного дома
Реконструкция кровли
Ремонт мягкой кровли
Ремонт плоской кровли
Утепление кровли
Утепление кровли минватой
Водосточная система кровли
Установка мансардных окон
Монтаж снегозадержателей
Обшивка трубы дымохода
Подшив свесов кровли
Фасадные работы
Грунтовка фасада
Утепление фасада дома
Утепление фасада пенопластом
Утепление фасада минеральной ватой
Отделка фасада дома
Отделка фасада декоративной штукатуркой
Отделка фасада штукатуркой
Мокрый фасад
Облицовка дома кирпичом
Монтаж вентилируемого фасада
Ремонт и реставрация фасада
Ремонт фасада
Реставрация фасада
Инженерные работы
Вентиляция и система кондиционирования для частного дома
Водоснабжение дома
Монтаж систем отопления
Монтаж наружных сетей электроснабжения
Заборы и ворота
Разновидности заборов
3d сетка для забора
Бетонный забор
Забор из кирпича
Забор из металлического штакетника
Разновидности ворот
Ворота с калиткой
Распашные ворота
Откатные ворота
Монтаж автоматики
Благоустройство земельного участка
Наши работы
Контакты
Полезное
Проекты
Главная
|
Проекты
|
Nokia
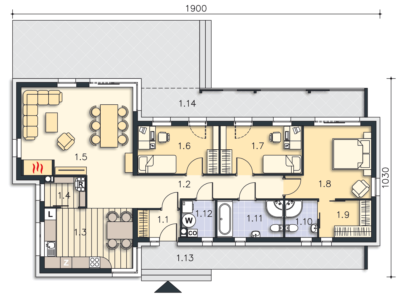
Nokia
Полезная площадь
112,28m2
Тип
Одноэтажный дом
Чистая площадь
112,28m2
Минимальная ширина участка
27m x 18,80m
Объем
635,50m2
Высота конька
4,70m
Угол крыши
1.2°
Nokia
Узнать стоимость
Первый этаж
112,28m2
Вестибюль:
3,01m2
Коммуникация:
14,19m2
Кухня:
13,97m2
Кладовая:
3,01m2
Гостиная:
26,02m2
Комната:
10,19m2
Комната:
10,19m2
Комната:
14,06m2
Гардероб:
5,06m2
Ванная комната:
3,09m2
Ванная комната:
6,40m2
Помощь по дому:
3,09m2
Платформа:
13,81m2
Терраса:
47,67m2
Звоните
Пн-Пт с 9:00 до 18:00
+375 29 310-62-10
или заполните форму
для обратного звонка
мы перезвоним и ответим на Ваши вопросы
Перезвоните мне
Вы соглашаетесь с
условиями
обработки персональных данных
Мы находимся по адресу:
г. Минск, ул. Кнорина 55, офис 51
Наш офис
Аттестованная строительная
компания в Беларуси
Контакты
+375 29 310-62-10
Время работы
Пн-Пт с 9:00 до 18:00
Адрес
г. Минск, ул. Кнорина 55, оф.51
Рассчитать стоимость
Перезвоните мне
Вызвать замерщика
Франскевич Евгений
главный инженер
Давайте я Вам позвоню
или Вы можете прямо
сейчас начать чат со мной:
где Вам удобнее беседовать?
Viber
tg2
Telegram
Либо оставьте свой номер телефона
и
я Вам перезвоню в течение 15 минут
Перезвоните мне
Вы соглашаетесь с
условиями
обработки персональных данных
Спасибо!
Мы свяжемся в Вами в ближайшее время
Если у Вас
срочный вопрос
Звоните
Пн-Пт с 9:00 до 18:00
+375 (29) 310-93-67
или
пишите в мессенджер:
Viber
tg2
Telegram
Франскевич Евгений
главный инженер
Вызовите замерщика
в удобное для вас время
Заполните форму и мы
перезвоним в ближайшее время
Перезвоните мне
Вы соглашаетесь с
условиями
обработки персональных данных
Франскевич Евгений
главный инженер
Получить консультацию
от строителя с 10 летним опытом
Вы можете прямо
сейчас начать чат со мной:
где Вам удобнее беседовать?
Viber
tg2
Telegram
Либо оставьте свой номер телефона и
я Вам перезвоню в течение 15 минут
Перезвоните мне
Вы соглашаетесь с
условиями
обработки персональных данных
Форма заказа
заполните форму, чтобы отправить заявку
Какие строительные услуги необходимы?
1
Архитектура и проектирование
Геодезия и геология
Строительство фундаментов
Строительство стен
Кровельные работы
Расположение объекта
2
Ваши контакты
3
Заказать
Вы соглашаетесь с
условиями
обработки персональных данных
Рассчитайте стоимость
кровли в калькуляторе
Точная
стоимость
Подарок
на выбор
Рассчитать стоимость
Выберите услугу для расчета стоимости
Архитектура и проектирование
Расчет стоимости геодезических и геологических
работ
Фундаментные работы
Расчет стоимости строительства стен
Расчет стоимости кровельных работ