Маленькая картинка
Маленькая картинка
Звоните
+375 29 310-62-10
Свяжитесь с нами
Перезвоните мне

Garda II

Полезная площадь 170,79m2
Тип Одноэтажный дом
Чистая площадь 245,82m2
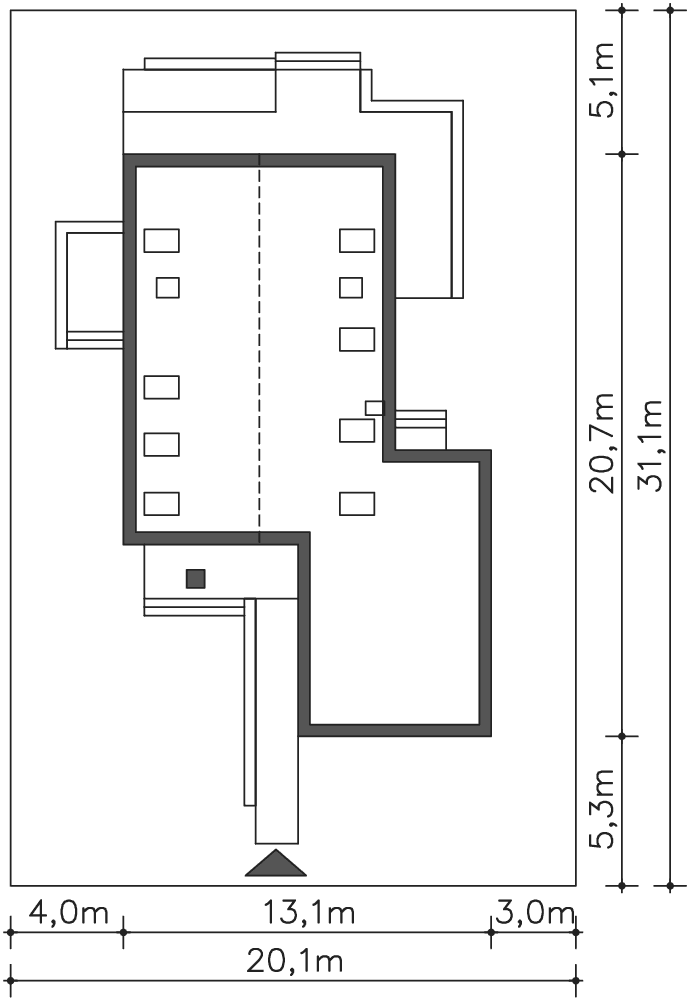
Минимальная ширина участка 20,10m x 31,10m
Объем 1023m2
Высота конька 8,58m
Угол крыши 40°
Image

Первый этаж

137,45m2

Вестибюль:4,89m2
Коммуникация:4,54m2
Комната:11,62m2
Буфер обмена:1,01m2(3,39m2)
Столовая:15,54m2
Кухня:12,71m2
Гостиная:28,29m2
Ванная комната:6,37m2
Помощь по дому:5,92m2
Котел:8,24m2
Гараж:38,32m2
Платформа:10,05m2
Терраса:7m2
Терраса:45,19m2
Платформа:2,27m2
Image

Чердак

79,90m2

Лестница:5,49m2
Коммуникация:10,59m2
Гардероб:4,81m2(8,35m2)
Комната:11,75m2(16,33m2)
Комната:11,75m2(16,33m2)
Гардероб:1,87m2(3,20m2)
Прачечная:4,17m2(6,26m2)
Ванная комната:6,24m2(7,97m2)
Гардероб:4m2
Ванная комната:6,53m2(9,80m2)
Комната:12,70m2(17,67m2)

Звоните

Пн-Пт с 9:00 до 18:00
+375 29 310-62-10

или заполните форму
для обратного звонка

мы перезвоним и ответим на Ваши вопросы

Мы находимся по адресу:

г. Минск, ул. Кнорина 55, офис 51

Наш офис

Контакты
Время работы
Пн-Пт с 9:00 до 18:00
Адрес
г. Минск, ул. Кнорина 55, оф.51
Рассчитать стоимость
Перезвоните мне
Вызвать замерщика