Маленькая картинка
Маленькая картинка
Звоните
+375 29 310-62-10
Свяжитесь с нами
Перезвоните мне

Dayton II

Полезная площадь 204,96m2
Тип Одноэтажный дом
Чистая площадь 316,72m2
Минимальная ширина участка 26,70m x 22,10m
Объем 1 145,42m2
Высота конька 8,63m
Угол крыши 40°
Площадь крыши 338m2
Image

Первый этаж

149,04m2

Вестибюль:6,18m2
Гардероб:2,44m2
Коммуникация:6,01m2
Ванная комната:3,59m2
Кладовая:2,37m2
Кухня:21,83m2
Гостиная столовая:48,21m2
Коммуникация:5,33m2(7,43m2)
Комната:12,86m2
Котел:6,64m2
Гараж:33,58m2
Платформа:7,16m2
Терраса:31,30m2
Платформа:4,32m2
Image

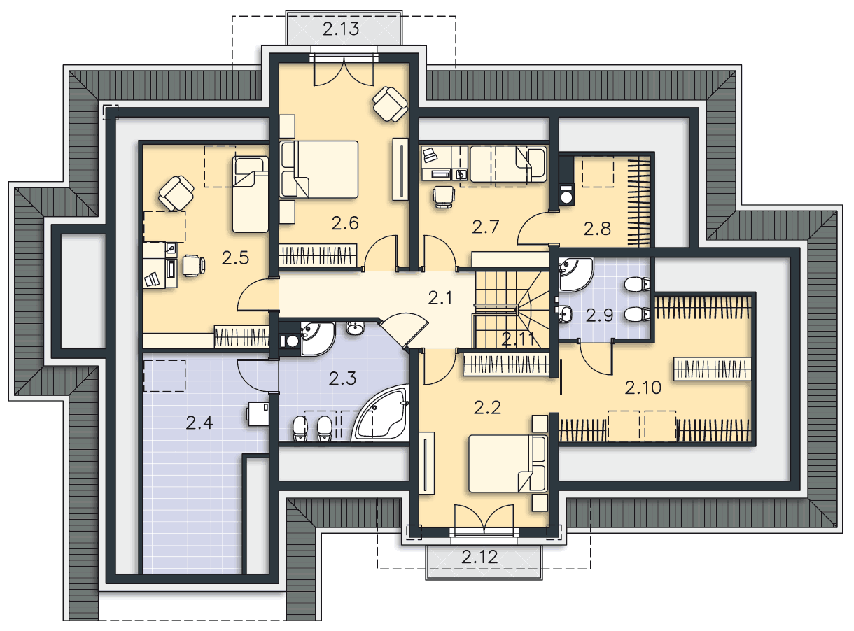
Чердак

96,14m2

Коммуникация:7,25m2
Комната:13,92m2(15m2)
Ванная комната:7,97m2(12,82m2)
Помощь по дому:8,33m2(22,42m2)
Комната:10,98m2(23,44m2)
Комната:16,39m2(17,53m2)
Комната:8,01m2(12,86m2)
Гардероб:3,61m2(10,93m2)
Ванная комната:4,03m2(4,93m2)
Гардероб:11,35m2(28,70m2)
Лестница:4,30m2
Балкон:2,70m2
Балкон:2,70m2

Звоните

Пн-Пт с 9:00 до 18:00
+375 29 310-62-10

или заполните форму
для обратного звонка

мы перезвоним и ответим на Ваши вопросы

Мы находимся по адресу:

г. Минск, ул. Кнорина 55, офис 51

Наш офис

Контакты
Время работы
Пн-Пт с 9:00 до 18:00
Адрес
г. Минск, ул. Кнорина 55, оф.51
Рассчитать стоимость
Перезвоните мне
Вызвать замерщика